











Va doriti un apartament spatios cu personalitate situat intr-o vila tip bloc interbelic dintr-o locatie ultracentrala de prestigiu o oaza de liniste situata in afara traficului din imediata vecinatate a parcului Gradina Icoanei ?
Daca raspunsul este DA sunt incantat sa va anunt ca acest apartament s-ar putea sa vi se potriveasca !
Apartamentul necesita renovare totala dar potentialul lui dupa renovare este imens permitandu-va totodata sa-l puteti amenaja inca de la inceput asa cum va doriti.
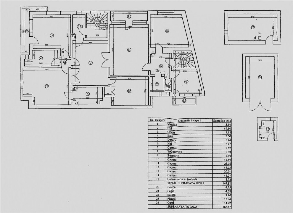
Apartamentul este situat intr-o vila tip bloc interbelic din zona parcului Gradina Icoanei. Suprafata utila a apartamentului este de 156 mp (iar cea utila locuibila de 145 mp) si are in componenta 6 camere si anume: din vestibul (3.50mp) se intra in zona de zi in suprafata totala de 43 mp compusa dintr-un salon spatios (19mp) si o sufragerie generoasa (24mp) cu deschidere catre o terasa ce priveste catre curtea blocului in care se afla copaci batrani. Din salon se intra in cele trei dormitoare un dormitor matrimonial (21mp) cu dressing propriu(6 mp) un dormitor (16 mp) cu balcon si al treilea dormitor de14mp. Sala de baie (550mp) este spatioasa si are ventilatie naturala. Din sufragerie se intra catre zona de servicii a apartamentului unde se afla al patrulea dormitor (14mp). Unul din dormitoare poate primi si functiunea de birou. Un hol de 6 mp face legatura cu scara de serviciu bucataria mare (8mp) cu logie (2 mp) si a doua sala de baie (350 mp). La demisolul imobilului gasim doua spatii de depozitare de 4mp si respectiv 16 mp.
Suprafata totala utila a proprietatii inclusiv dependintele si garajul este de 186 mp.
Apartamentul are in proprietate unicul garaj din cladire care poate fi cumparat suplimentar si optional cu suma de 17.500 euro.
Apartamentul beneficiaza de o oaza de liniste nefiind pozitionat la o strada circulata.
Apartamentul este amplasat intr-o locatie de prestigiu din zona ultracentrala cu acces facil la transport urban iar in imediata vecinatate sunt parcuri si locuri de joaca pentru copii.
Zona este renumita pentru multitudinea de centre culturale si restaurante gourmet.
Apartamentul este excelent orientat catre sud fiind insorit toata ziua.
Nota: imaginile sunt cu titlu de prezentare si reprezinta o propunere de amenajare.